Description
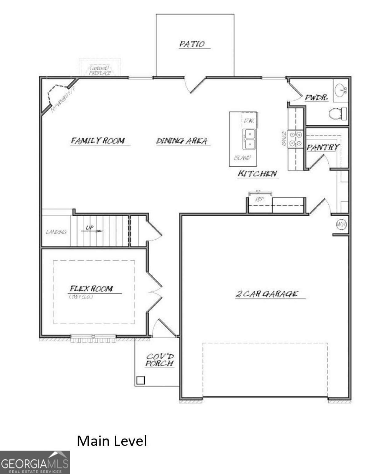
100% COMPLETE Autumn 2 story floor plan. Kitchen boasts a Walk-in Pantry, White Custom Cabinets with Granite Countertops! Appliances include Dishwasher, Electric Smooth top Stove and Microwave! Open Concept with Kitchen Views into Family Room. Kitchen Island and Electric Fireplace in Family Rm. Flex Room on Front for Personal office or separate den area! Builder incentives are $4000 closing costs.
-
4BEDS
-
0.49ACRES
-
2BATHS
-
11/2 BATHS
-
2,200SQFT
-
$167$/SQFT
School Information
Description
100% COMPLETE Autumn 2 story floor plan. Kitchen boasts a Walk-in Pantry, White Custom Cabinets with Granite Countertops! Appliances include Dishwasher, Electric Smooth top Stove and Microwave! Open Concept with Kitchen Views into Family Room. Kitchen Island and Electric Fireplace in Family Rm. Flex Room on Front for Personal office or separate den area! Builder incentives are $4000 closing costs.
Related Properties
© 2026 Georgia Multiple Listing Service, Inc. All rights reserved. The data relating to real estate for sale or lease on this web site comes in part from GAMLS. Real estate listings held by brokerage firms other than Jon Barnwell Team | RE/MAX Town & Country are marked with the GAMLS logo or an abbreviated logo and detailed information about them includes the name of the listing broker. IDX information is provided exclusively for consumers' personal, non-commercial use and may not be used for any purpose other than to identify prospective properties consumers may be interested in purchasing. Information is deemed reliable but is not guaranteed accurate by GAMLS or Jon Barnwell Team | RE/MAX Town & Country. Data last updated: 2026-04-10T15:11:04.813.