Description
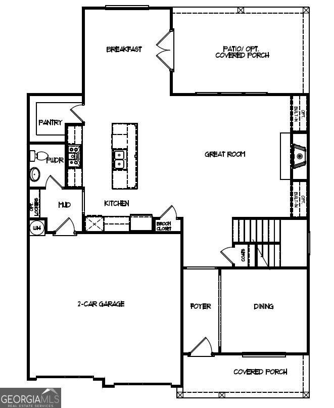
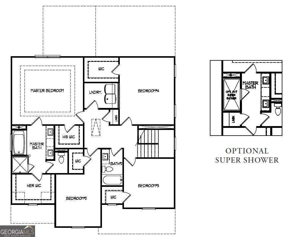
The Miller Plan built by Walker Anderson Homes is a Beautiful Home on a Quiet Culdesac Street in the Charming Hemingway Community in Downtown Flowery Branch and within walking distance to Lake Lanier's Marinas, Restaurants, and Recreational Offerings. The Home features a Luxurious Brick & Siding Exterior with Covered Rear Porch and Expansive 9-Foot Ceilings on both the Main and Upper Levels. When you enter through the front door from the Covered Front Porch, you are greeted by a Formal Dining Room which can also be used as an office. The Kitchen is open to the Family Room & Breakfast Room, has Painted Cabinets with Soft-Close Cabinet Doors & Drawers and includes a 36" Gas Cooktop with Cabinet Vent Hood, Wall Oven, Wall Microwave, all complimented by a Large Island. The Primary Bedroom Suite Upstairs is Spacious and complete with a Tray Ceiling, Two Walk-In Closets, Double Vanity, and a Large Shower with Separate Soaking Tub. A Super Shower Option is also available. There are Three Additional Bedrooms Upstairs, each with a Walk-In Closet, and and an additional Full Bath. Home is under construction with a projected completion in Summer of 2026. Ask about your Incentives with use of preferred lender. *Secondary Photos are Stock Photos
-
4BEDS
-
0.16ACRES
-
2BATHS
-
11/2 BATHS
-
2,633SQFT
-
$190$/SQFT
School Information
Description
The Miller Plan built by Walker Anderson Homes is a Beautiful Home on a Quiet Culdesac Street in the Charming Hemingway Community in Downtown Flowery Branch and within walking distance to Lake Lanier's Marinas, Restaurants, and Recreational Offerings. The Home features a Luxurious Brick & Siding Exterior with Covered Rear Porch and Expansive 9-Foot Ceilings on both the Main and Upper Levels. When you enter through the front door from the Covered Front Porch, you are greeted by a Formal Dining Room which can also be used as an office. The Kitchen is open to the Family Room & Breakfast Room, has Painted Cabinets with Soft-Close Cabinet Doors & Drawers and includes a 36" Gas Cooktop with Cabinet Vent Hood, Wall Oven, Wall Microwave, all complimented by a Large Island. The Primary Bedroom Suite Upstairs is Spacious and complete with a Tray Ceiling, Two Walk-In Closets, Double Vanity, and a Large Shower with Separate Soaking Tub. A Super Shower Option is also available. There are Three Additional Bedrooms Upstairs, each with a Walk-In Closet, and and an additional Full Bath. Home is under construction with a projected completion in Summer of 2026. Ask about your Incentives with use of preferred lender. *Secondary Photos are Stock Photos
© 2026 Georgia Multiple Listing Service, Inc. All rights reserved. The data relating to real estate for sale or lease on this web site comes in part from GAMLS. Real estate listings held by brokerage firms other than Jon Barnwell Team | RE/MAX Town & Country are marked with the GAMLS logo or an abbreviated logo and detailed information about them includes the name of the listing broker. IDX information is provided exclusively for consumers' personal, non-commercial use and may not be used for any purpose other than to identify prospective properties consumers may be interested in purchasing. Information is deemed reliable but is not guaranteed accurate by GAMLS or Jon Barnwell Team | RE/MAX Town & Country. Data last updated: 2026-04-21T23:10:15.963.